Đất nở hậu, nhà nở hậu là một thế đất đặc biệt, mang ý nghĩa tốt về mặt phong thủy. Vậy đất nở hậu là gì? Xây nhà trên đất nở hậu có tốt không?
Bài viết cùng chủ đề:
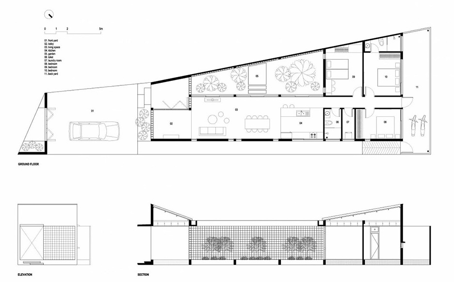
Đất nở hậu là mảnh đất có kích thước tăng dần tính từ mặt đường vào bên trong theo hình thang. Phần tiếp giáp với mặt đường có diện tích nhỏ hơn so với phía cuối mảnh đất.
Nhiều người so sánh đất nở hậu giống như một cái phễu, bình hồ lô. Vì hình dạng và kích thước của nó càng phình to ra khi về sau.

Nhà nở hậu là ngôi nhà được xây dựng trên đất nở hậu, có phần diện tích mặt sàn bằng với diện tích của lô đất mà nó được xây dựng lên. Cửa chính là phần nhỏ, thuôn rộng về phía cửa sau của nhà.
Nhà nở hậu có hình dạng đầu nhỏ đuôi to, kích thước tăng dần về phần sau, không chỉ có không gian rộng lớn, đi lại thuận lợi, dễ dàng mà còn có ý nghĩa về mặt phong thủy, hội tụ nhiều may mắn, tài lộc, giúp gia chủ ngày càng sung túc, phát triển mạnh.
Theo quan niệm về mặt phong thủy, nhà nở hậu với hình dạng và kích thước đặc biệt có thể đem lại vận may và tài lộc đến cho gia chủ. Ngoài ra, phần đáy rộng có thể giữ tài lộc trong gia đình mà không bị thất thoát ra ngoài. Đó là lý do mà nhiều người tin rằng, ở nhà nở hậu có thể giúp gia chủ làm ăn ngày càng phát đạt, thăng tiến trong công việc.
Không chỉ như vậy, nhà nở hậu còn có giá trị về mặt thẩm mỹ, dễ thiết kế và trang trí nội thất. Không gian sống rộng rãi khiến tinh thần của các thành viên trong gia đình trở nên thoải mái, phấn chấn.
Nhà nở hậu hiện nay được nhiều người săn lùng, tìm kiếm, nhất là những người làm ăn kinh doanh. Tuy nhiên, vì nhu cầu lớn, mà nguồn cung nhà nở hậu trở nên khan hiếm và giá nhà thường bị đẩy lên cao. Nếu không thể mua được nhà nở hậu, bạn có thể mua đất nở hậu và thiết kế nhà theo ý mình.
>> Tham khảo thêm: Mua bán nhà đất TPHCM
.jpg)
Với những ngô nhà xây dựng trên đất nở hậu dễ khiến tổng thể ngôi nhà xây lên mất đi sự cân đối, vuông vức và hài hòa vốn có. Ngôi nhà có thể bị lệch, méo và khả năng ảnh hưởng đến cả vấn đề sinh hoạt chung chứ không chỉ là yếu tố thẩm mỹ. Khi xây nhà nở hậu, cần lưu ý một số điều sau:
- Cẩn trọng khi chọn mẫu nhà ngay từ khi lên ý tưởng thiết kế, xây dựng. Bạn nên chọn dáng nhà tương ứng với diện tích và đặc điểm của mảnh đất mình đang sở hữu. Thường thì không nên xây nhà trên toàn bộ diện tích đất ở vì xây sát mép đất sẽ khiến ngôi nhà dễ lộ ra nhược điểm không vuông vức.
- Nên có sự tư vấn, hỗ trợ của kiến trúc sư chuyên thiết kế nhà giúp phát huy được ưu điểm, tạo không gian thẩm mỹ cho nhà nở hậu.
- Trong trường hợp mảnh đất nở hậu hình chữ L thì giải pháp tối ưu nhất chính là xây một cái sân nhỏ ở trước nhà hoặc giữa nhà. Sân này có tác dụng tương tự như giếng trời tại các nhà ống vậy. Nó sẽ giúp căn nhà luôn thông thoáng, hỗ trợ lưu chuyển khí tức của mảnh đất và giúp việc di chuyển, sinh hoạt giữa các phòng chức năng trong nhà thuận tiện hơn.

- Với mảnh đất nở hậu có dáng chéo thì bạn cần khéo léo hơn trong việc chọn mẫu thiết kế. Mảnh đất này rất dễ khiến ngôi nhà tương lai lộ ra nhược điểm. Cách an toàn nhất để hạn chế các góc nhà bị méo là bạn xây một bức tường chính làm chuẩn cho cả ngôi nhà. Từ góc tường này bạn hãy phát triển thêm các không gian sinh hoạt phụ như phòng khách, phòng ngủ.
Riêng với phần đất méo lộ hẳn ra ngoài thì hãy tận dụng chúng để cải tạo thành các không gian phụ như nhà kho hoặc sân vườn, tiểu cảnh,...
- Nếu bạn chỉ có một mảnh đất nở hậu thông thường thì hãy ưu tiên chọn các thiết kế tạo hình phòng vuông vức. Một số yếu tố phụ trợ như kệ để đồ tam giác hoặc các phần vách trang trí, giá đựng đồ có thể tạo hiệu ứng thị giác về một căn nhà đẹp, thuận mắt thay vì bị méo.
Hoặc nếu đất nhà bạn là một hình thang vuông vắn đều cả hai bên thì bạn có thể chọn xây nhà ở chính giữa hai bên, chừa lại hai bên làm sân vườn, chỗ đỗ xe hoặc nhà kho,..
Bên cạnh đất nhà nở hậu, còn có một thế đất đặc biệt trong phong thủy đó là đất thóp hậu, nhà thóp hậu. Nhà thóp hậu là những ngôi nhà nằm trên mảnh đất có dáng rất xấu, thường là khuyết mất một góc phía sau, hông nhà tạo thành góc nhọn hoặc các mảnh đất có dáng không vuông do nằm tại các vùng đồi, núi gồ ghề.
Nhà thóp hậu cũng có thể là những ngôi nhà có vị thế không thuận như đường đi mặt tiền chật hẹp, cong, gấp khúc,... Cống rãnh hoặc cây cổ thụ lấn vào phía sau của mảnh đất, có ngõ hoặc ngách nhìn thẳng vào nhà,...
Theo các chuyên gia phong thủy, nhà thóp hậu còn được gọi là nhà “Đầu voi đuôi chuột”, nhà này không giữ được tiền tài, vào bao nhiêu cũng thất thoát, càng về sau càng khó khăn. Tuy nhiên, thực tế thì một ngôi nhà thóp hậu không hoàn toàn xấu. Bạn có thể tận dụng mặt trước của ngôi nhà để thu hút tài lộc và tìm cách hạn chế việc tài vận bị đẩy ra ngoài thông qua cửa sau nhà.
Mặt khác, nếu vẫn còn lo lắng về tính thẩm mỹ khi xây nhà trên đất thóp hậu thì bạn có thể nhờ đến các kiến trúc sư chuyên thiết kế mẫu nhà kiểu này. Gia chủ có thể tận dụng các lợi thế của mảnh đất cũng như sử dụng các biện pháp, vật phẩm phong thủy để hóa giải các bất lợi nếu có.
Phương Vũ (TH)